Prodej bytu 2+kk/B, 71 m2, Karla Zicha, Praha, Uhříněves

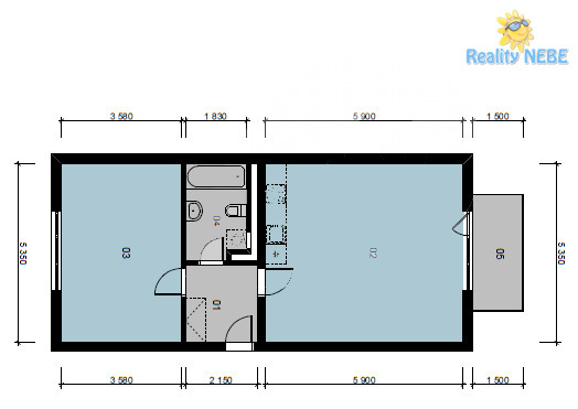
Nabízíme k prodeji prostorný slunný byt 2+kk, Karla Zicha, Praha Uhříněves. Dům je součástí bytového komplexu Zahrady Uhříněves dokončeného v roce 2007, který tvoří neprůjezdnou polouzavřenou lokalitu obytné zóny se vzrostlou zelení. Byt se nachází v prvním patře s pěkným výhledem na Uhříněveský kostel. Skládá se z prostorného obývacího pokoje s kuchyňským koutem (32 m2), ložnice (19 m2), předsíně (5 m2), koupelny (5 m2), balkonu (5 m2) a sklepu (5 m2). Kuchyňská linka je s vestavěnými spotřebiči, elektrickou troubou, mikrovlnnou troubou a myčkou na nádobí. Ložnice je orientovaná na východ, obývací pokoj s balkonem na západ. V obou místnostech je velké třídílné francouzské okno. V suterénu domu je plynový kotel, který zajišťuje jak vytápění, tak celoročně teplou vodu. V bytě je k dispozici internetové připojení optickým kabelem. Měsíční poplatky jsou cca. 5000 za měsíc (SVJ, fond oprav, teplo, teplá a studená voda). Elektřina je cca. 1000 za měsíc. V případě zájmu lze převzít od současného majitele pronájem podzemního garážového stání pod budovou (1900 za měsíc). Veškerá občanská vybavenost je v okolí. V Uhříněvsi jsou dvě základní školy, pět mateřských škol a dále obchody Lidl, Penny, Billa a Norma. V centru obce je v docházkové vzdálenosti nabídka 10 restaurací, kavárna, cukrárna, pošta. Kulturním zážitkům slouží kino a divadlo U22, pro sportovní vyžití se nabízí sokolovna, tenisové a badmintonové kurty i fotbalový klub Čechie Uhříněves, skatepark a v zimě je možné bruslit v areálu základní školy nebo na jednom ze zdejších rybníků. Dopravní dostupnost je velmi dobrá. Linka vlaku S9 jezdí do centra Prahy každou čtvrthodinu, dále je zde bus 15 min na metro C Háje a Metro A Depo Hostivař. Celkově jde o příjemné bydlení v klidné lokalitě se spoustou zeleně v okolí. Vážní zájemci volejte Po-Pá 9-18h.

Další informace

Číslo nabídky
N5317
Adresa
Praha 22, Karla Zicha
Dispozice bytu
2+kk
Druh stavby
Cihlová
Celková plocha
71 m2
Užitná plocha
66 m2
Stav objektu
Velmi dobrý
Typ domu
Patrový
Číslo podlaží
2
Počet podlaží
3
Vlastnictví
Osobní
Balkon
5 m2
Sklep
5 m2
Rok výstavby
2007
K dispozici od
2026-02-01
PENB: Náročnost budovy
C - Úsporná

7 700 000 Kč za nemovitost


Ing. arch. Jan Šťastna M.Sc.
602222282
honza@realitynebe.cz

Zaujala Vás tato nemovitost?